苏州
关闭
H
杭州1
1
K
昆山1
1
S
苏州1
1
W
无锡1
1
首页
新房
找楼盘
团购
帮你找房
地图找房
资讯
楼盘动态
购房指南
房产资讯
楼盘导购
房产宝典
房产百科
优惠活动
二手房
在售房源
小区找房
我要求购
地图找房
找经纪人
出租房
出租房源
我要求租
商铺
商铺出售
商铺出租
写字楼
写字楼出售
写字楼出租
问答
【二手房成交查询】
登录
/
注册
/
退出
您的位置:
居佳找房
>
新房
> 蔚然璀璨花园
楼盘主页
楼盘动态
在售户型
楼盘相册
楼盘信息
楼盘问答
价格走势
楼栋信息
楼盘点评
蔚然璀璨花园
4008853076
转
676
效果图
效果图
效果图
效果图
蔚然璀璨花园
在售
均价:
14500
元/㎡
变价通知
加入收藏
开盘时间 :
2023年01月30日
[开盘通知我]
交房时间 :
2024年03月19日
[周边配套情况]
主力户型 :
3室户型 (3)
[余房查询]
证 件:
[成交价查询]
开 发 商 :
发商 苏州湖玺房地产开发有限公司
[获取最新楼盘资料]
项目地址 :
吴中-香山香山街道白马寺路6号
查看地图
售楼处咨询电话
4008853076
转
676
预约看房
在线咨询
开发商官方顾问
直属开发商
售楼处接待
非经纪人
不赚差价
董天明
线下接待 21人
已成交 13人
在线咨询
微信
顾双双
线下接待 43人
已成交 11人
在线咨询
微信
周玉明
线下接待 35人
已成交 15人
在线咨询
微信
楼盘动态
更多
消息通知
(我们将为您保密个人信息)
变价通知
优惠通知
开盘通知
动态订阅
立即订阅
在售户型
更多
全部户型(
3
)
3居室(
2
)
4居室(
1
)
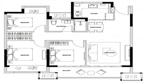
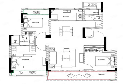
3室2厅
面积:96.00㎡
朝向:
查看户型原图
172万元/套
参考总价:
3室2厅
面积:110.00㎡
朝向:
查看户型原图
197万元/套
参考总价:
4室2厅
面积:128.00㎡
朝向:
查看户型原图
229万元/套
参考总价:
楼盘相册
更多
效果图(4)
效果图
效果图
效果图
效果图
楼盘详情
开发商
发商 苏州湖玺房地产开发有限公司
产权年限
70年
主力户型
3室户型 (3)
楼层情况
小高层,花园洋房
绿化率
37
容积率
2
车位
暂无信息
规划户数
896户
物业费
暂无信息
物业公司
暂无信息
装修情况
周边配套
商业
交通
教育
医疗
猜你喜欢
为您推荐
芳菲澜院
均价:
27000元/㎡
绿城沁百合
均价:
42000元/㎡
熙和云锦雅园
均价:
27000元/㎡
和棠里
均价:
24000元/㎡
吴风宸樾府
均价:
26500元/㎡
朗诗蔚蓝广场
均价:
18000元/㎡
天健-清枫和苑
均价:
26864元/㎡
朗诗·乐府
均价:
30000元/㎡
都会理想花园
均价:
17000元/㎡
天空之城2077
均价:
12000元/㎡